Architectural technology and Construction Management
I offer personalized architectural design services that integrate functionality, aesthetics, and sustainability, creating beautiful and practical spaces. As an architectural technologist, I specialize in building design and planning, ensuring compliance with local codes. My construction management services cover every project aspect from start to finish, ensuring timely, budgetconscious, high-quality outcomes. Additionally, I provide energy efficiency consulting to reduce costs and environmental impact. I also offer renovation and remodeling services to rejuvenate existing spaces, preserving their original charm.
Services and How I Work
Architectural Design
I provide personalized architectural design services tailored to meet your specific needs and preferences. My approach ensures that every design integrates functionality, aesthetics, and sustainability, creating spaces that are both beautiful and practical.
Construction Management
From conception to completion, I manage all aspects of your construction project. My construction management services ensure that your project is completed on time, within budget, and to the highest quality standards. I coordinate with contractors, oversee construction activities, and ensure that everything runs smoothly.
Energy Efficiency Consulting
I provide expert advice on energy-efficient building practices and materials. My goal is to help you reduce energy consumption, lower costs, and minimize your environmental footprint.
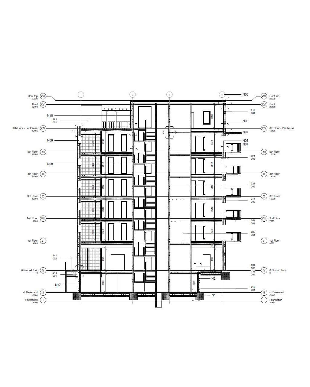
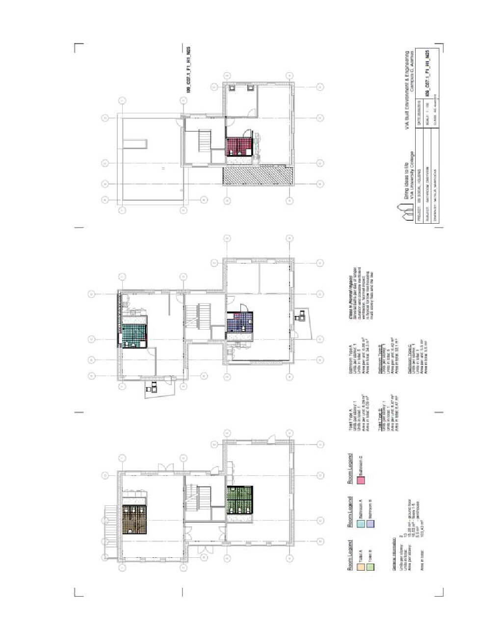
Building Design and Planning
As an architectural technologist, I specialize in building design and planning. I ensure that all designs are functional, efficient, and compliant with local building codes and regulations. My expertise covers everything from initial concept designs to detailed construction drawings.
Renovation and Remodeling
I offer renovation and remodeling services to transform existing spaces. Whether it’s a modern update, a complete overhaul, or historic restoration, I bring new life to old structures while preserving their original charm.
A. Initial Consultation
My process begins with an initial consultation where we discuss your project requirements, vision, and budget. This meeting helps me understand your needs and allows me to provide a tailored approach to your project.
B. Conceptual Design
Based on our initial consultation, I develop a conceptual design. This includes preliminary sketches and layouts that capture the essence of your vision. I ensure that the design aligns with your expectations and regulatory requirements.
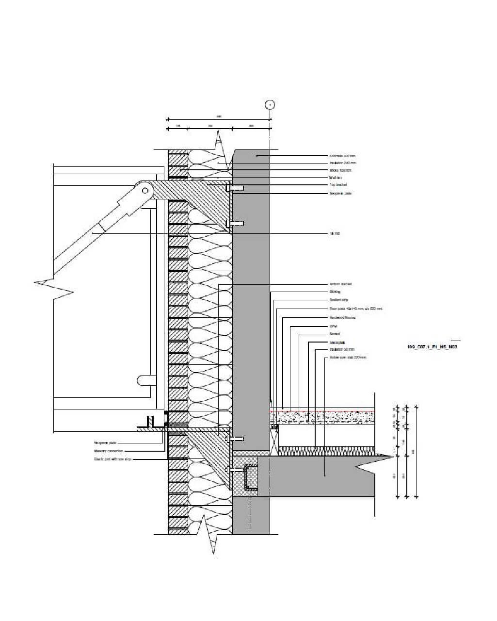
C. Detailed Planning
Once the conceptual design is approved, I proceed with detailed planning. This phase includes creating detailed drawings, selecting materials, and developing a project timeline. I work closely with you to refine every detail.
D. Construction Management
During the construction phase, I oversee all activities to ensure they align with the design and quality standards. I coordinate with contractors and suppliers, provide regular updates, and address any issues that arise to keep the project on track.
E. Final Inspection/Handover
Upon completion, I conduct a thorough final inspection to ensure everything meets our quality standards and your satisfaction. I then hand over the project, complete with all necessary documentation and warranties.
F. Post-Construction Support
My commitment to you doesn’t end with the handover. I offer post-construction support to address any issues that may arise and ensure your continued satisfaction with my work.



















